El gobierno de la Capital Federal ha puesto a subasta ocho hectáreas de tierras públicas que originalmente formaban parte del Parque de la Ciudad, ubicado en la Comuna 8. Esta venta se realizará en bloque, lo que significa que un único comprador adquirirá los 78.000 metros cuadrados de superficie a un valor irrisorio de 24 dólares por metro cuadrado. Además, el futuro propietario tendrá la posibilidad, gracias al Código Urbanístico, de duplicar la superficie de casi 120.000 metros cuadrados de vivienda que se le permite construir, para luego vender esa superficie “duplicada” y permitir la construcción de torres en la zona norte de la ciudad. En noviembre, la ciudad tendrá un nuevo terrateniente urbano. Aquí te comentaremos cómo llegamos a esta descabellada situación.
El pretexto olímpico
La ley 5.704, sancionada por la Legislatura de la Ciudad de Buenos Aires en 2016, no puede ser entendida como una norma aislada. Representa uno de los instrumentos legales de un ambicioso proyecto de transformación urbana a gran escala en la zona sur de la ciudad. La narrativa oficial que impulsó su aprobación se construyó sobre la base de un evento de magnitud internacional: la designación de Buenos Aires como sede de los Juegos Olímpicos de la Juventud de 2018.
La justificación oficialista se centró en la necesidad de construir una villa para los atletas, presentando el desarrollo del sur como un legado beneficioso de este esfuerzo. Sin embargo, la propia estructura de la ley demuestra que solo una pequeña fracción del terreno desafectado (aproximadamente 4 de 30 hectáreas) se destinó a la Villa Olímpica. La mayor parte del suelo fue simplemente rezonificada y declarada “innecesaria” para la gestión pública, con el único fin de ser vendida. Esto sugiere que el objetivo principal no era la construcción de la villa, sino la privatización de más de 25 hectáreas de valioso suelo público.
La Villa Olímpica, en este análisis, funcionó como un Caballo de Troya: una justificación políticamente aceptable para lograr un objetivo mucho mayor y más controvertido, que era desbloquear el valor inmobiliario del Parque de la Ciudad, el segundo pulmón verde más importante del área metropolitana.
La ley 5.704 fue una pieza de ingeniería jurídica diseñada para habilitar la transformación de un activo público protegido constitucionalmente (parque público metropolitano) en un bien de mercado para alimentar la especulación inmobiliaria. El pilar fundamental de la ley se encuentra en su artículo 1°, que ejecuta la acción legal clave: la “desafectación” de polígonos de tierra específicos del Distrito Equipamiento N° 51 - Parque de la Ciudad.

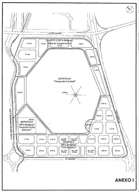
Al desafectar estas tierras, la ley las despoja de su estatus de parque público y las habilita para nuevos usos y, crucialmente, para su venta. El Anexo I de la ley contiene el plan detallado que delimita con precisión las 30 hectáreas que perdió el Parque de la Ciudad.

El proyecto de la Villa Olímpica no surgió en el vacío, sino que se inscribió en una estrategia de desarrollo urbano más amplia impulsada por el gobierno de la ciudad: la creación de “distritos económicos” temáticos. Esta política, que buscaba atraer inversiones a través de incentivos fiscales y la concentración de industrias específicas (tecnológica, audiovisual, del vino, de las artes), se focalizó mayoritariamente en la zona sur. La Villa Olímpica fue concebida como el proyecto insignia del “Distrito del Deporte”, creado por la ley 5.235 en 2014. Este enfoque, a menudo calificado como “empresarialismo urbano”, sitúa a la ley 5.704 dentro de un paradigma de gobernanza que prioriza la valorización del suelo y la atracción de capital privado como motores del desarrollo.
La sanción en la Legislatura porteña se logró con una mayoría de 46 votos a favor. La aprobación de la norma fue posible gracias a una alianza clave entre el partido gobernante (PRO), la Unión Cívica Radical (UCR), el Bloque Peronista, la Coalición Cívica, el Frente Renovador y los intereses del capital inmobiliario, que veían en la ley una oportunidad de negocio sin precedentes.
El debate legislativo cristalizó dos visiones antagónicas. Los defensores de la ley argumentaron que el proyecto generaría un impulso económico vital para una zona “relegada”, crearía nuevas viviendas y mejoraría la infraestructura urbana, dejando un legado positivo duradero. Se enfatizó la oportunidad única que representaban los Juegos Olímpicos para catalizar una inversión que, de otro modo, no se realizaría.
Por el contrario, gran parte de la ciudadanía se opuso a lo que consideraba un “ataque a los parques y las zonas verdes”, en un contexto de grave déficit de espacio verde por habitante, muy por debajo de las recomendaciones de la Organización Mundial de la Salud. Se denunció que el proyecto priorizaba el negocio inmobiliario por sobre las soluciones habitacionales genuinas y el bienestar de la comunidad, y se advirtió sobre el riesgo de un “negociado” con tierras públicas, vendidas a precios preferenciales a desarrolladores privados.
Subastando un parque público
Tras la celebración de los Juegos Olímpicos de la Juventud, el mecanismo de enajenación de tierras previsto en la ley 5.704 se activó, iniciando un proceso continuo de subastas que ha transferido progresivamente porciones del Parque de la Ciudad a manos privadas. En el año 2021, la primera gran subasta puso a la venta una hectárea (dividida en diez lotes) en una zona lindante con el Barrio Olímpico. La operación tuvo un éxito parcial, ya que solo se concretó la venta de cinco de los diez lotes ofrecidos. En 2023 se anunció una segunda tanda de subastas, esta vez por 14 terrenos que sumaban una superficie total de 11.414 m² (más de una hectárea). Esta venta generó una intensa polémica por el precio base fijado, que rondaba los 227 dólares por metro cuadrado, como mínimo cuatro veces inferior al valor de mercado para la zona. En junio de 2023 se vendieron tres terrenos de los 14 a 628.000 dólares. En febrero de 2025 se subastaron los que no se vendieron en 2023: 10 lotes individuales y uno de 10 lotes en conjunto.

Menos verde
La subasta programada para el 19 de noviembre próximo marca un punto de inflexión en la aplicación de la ley 5.704. Por su escala, su precio y el uso proyectado para el suelo, esta operación representa la culminación de la estrategia de privatización del Parque de la Ciudad, transformando definitivamente una gran porción del antiguo espacio verde en un nodo de actividad comercial y residencial.
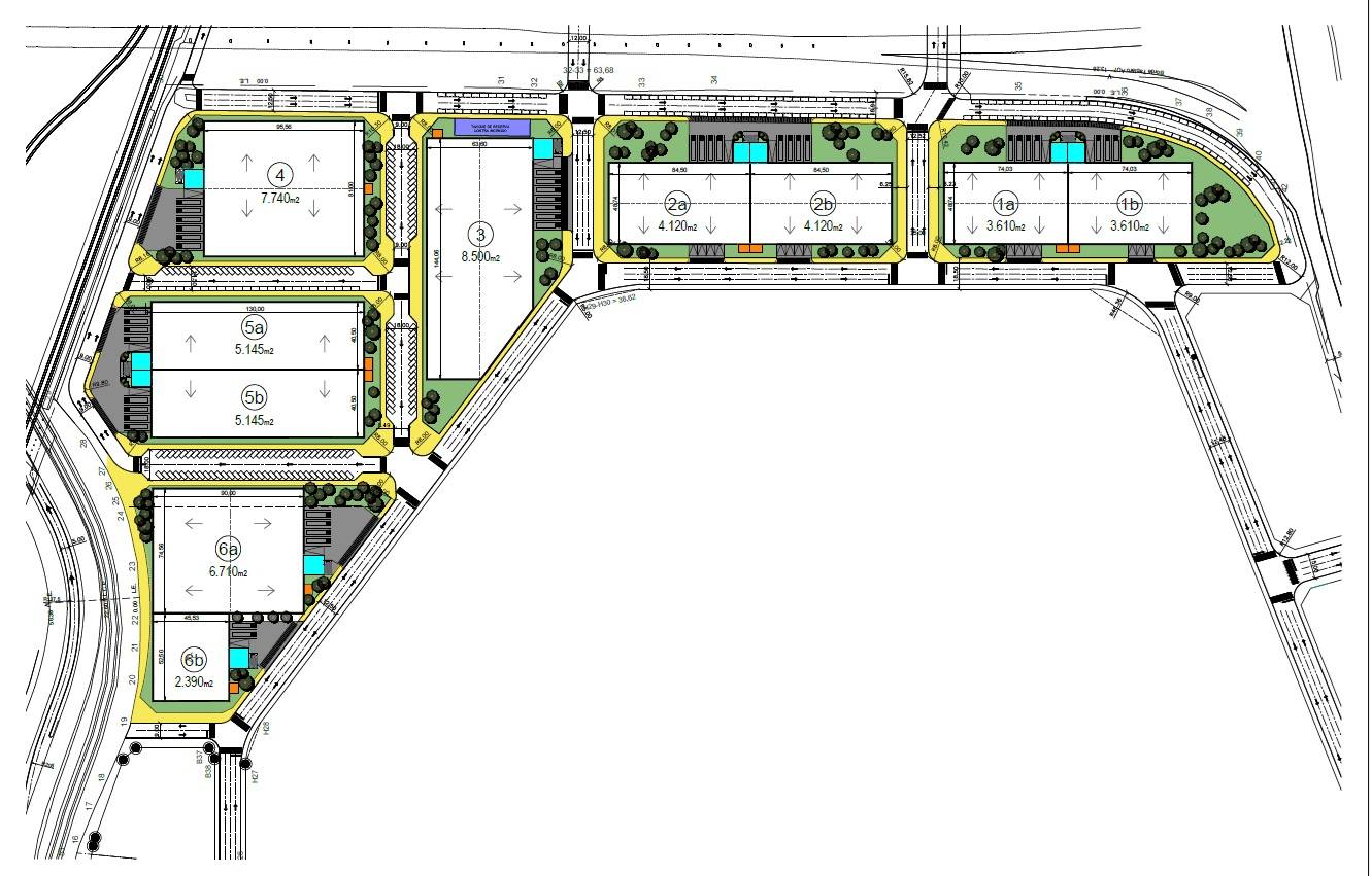
A diferencia de las subastas anteriores, que involucraban lotes más pequeños, esta operación pone en venta un bloque único y contiguo de seis manzanas completas: 79B, 79C, 79D, 79E, 79F y 79G.
La superficie total a subastar es de 78.862 m², es decir, aproximadamente ocho hectáreas. Estos terrenos están ubicados dentro del polígono denominado “Área de Equipamiento Lacarra”, una zonificación creada por la propia ley 5.704 sobre lo que antes era parte del parque.

El precio base se ha fijado en 1.900.000 dólares. Este monto da como resultado un precio por metro cuadrado de aproximadamente 24 dólares, una cifra extraordinariamente baja, incluso para los estándares de las controvertidas ventas anteriores. La venta se realiza bajo la modalidad “en bloque y con cargo”, lo que significa que se vende la totalidad de la superficie a un único comprador, quien a su vez asume una serie de obligaciones de construcción.
La principal condición impuesta al comprador es el desarrollo de un gran “sector logístico” con una superficie cubierta mínima de 53.000 m². Además del centro logístico, el adjudicatario está obligado a realizar una serie de obras de infraestructura pública en la zona, incluyendo redes de servicios (pluviales, electricidad), alumbrado público y obras viales, con un plazo de ejecución de 24 meses.
Esta venta de terrenos del Parque de la Ciudad es, en esencia, inconstitucional.
La Constitución de la Ciudad de Buenos Aires en su Artículo 27 establece un mandato claro para los poderes públicos de “proteger e incrementar los espacios públicos de acceso libre y gratuito” y “la preservación e incremento de los espacios verdes”. La venta de una porción de un parque público para desarrollo privado representa una violación directa de este mandato.
El Plan Urbano Ambiental (PUA - ley 2.930), que funciona como un marco rector para el desarrollo de la ciudad y al cual deben sujetarse todas las leyes, es aún más enfático. Exige mantener la “integridad” de los parques públicos y limita explícitamente el destino de las tierras fiscales a solo tres fines: incrementar los espacios verdes, proveer soluciones de vivienda social o destinarlas a equipamiento público. La fragmentación de un parque para su venta está totalmente prohibida.
Cabe destacar que hace más de 25 años se votó la ordenanza 46.229 –sancionada por el Concejo Deliberante de la Ciudad de Buenos Aires–que estableció la prohibición de “otorgar concesión, cesión, transferencia de dominio, tenencia precaria, permiso de uso ni cambio de destino de todo espacio destinado a parque, plazas, plazoletas y de todo otro espacio verde de uso público, se encuentre parquizado, jardinizado o no, perteneciente al dominio público municipal”.
La ciudad de Buenos Aires, a través de la ordenanza 46.229, avanzó con una protección muy estricta de los espacios verdes y de los parques para impedir que continúe su reducción, su privatización y la transferencia de su dominio a manos privadas. Este principio legal se transformó en uno constitucional al establecer la Constitución de la Ciudad que los espacios públicos deben incrementarse y no reducirse. El Plan Urbano Ambiental agregó que debe protegerse la integridad de los parques de la ciudad.
Claramente, existe una progresión en el reconocimiento de este derecho urbano ambiental para que no se reduzca la superficie de los parques a fin de conservar su integridad. La ley 5.704 constituye una manifiesta violación del principio de progresividad y de no regresividad en la protección de los parques de la ciudad al despojarse de, por lo menos, 30 hectáreas del Parque de la Ciudad. Ahora se estarían por vender ocho hectáreas del total. Las críticas sobre la falta de transparencia y el incumplimiento de las promesas sociales de la ley fueron validadas oficialmente en el informe de gestión que realizó la Auditoría General de la Ciudad de Buenos Aires (AGCBA) para el período 2019.
El informe de la AGCBA revela un incumplimiento sistemático de la ley 5.704 por parte de la Corporación Buenos Aires Sur S.E. (CBAS) y el IVC. Se detectó falta de participación comunal, ausencia de transparencia y control legislativo, incumplimiento en la creación de bolsas de trabajo e irregularidades en la adjudicación de viviendas, beneficiando a no residentes de la ciudad. Esto demuestra un fracaso en la gobernanza del proyecto, donde las cláusulas de participación y beneficio social fueron ignoradas, sugiriendo que eran meramente decorativas para enmascarar una operación inmobiliaria.
Inventar metros cuadrados
La Capacidad Constructiva Adicional (CCA) es un sistema de Transferencia de Derechos de Desarrollo, un mecanismo de planificación urbana utilizado internacionalmente que separa el derecho a construir del terreno físico donde se origina. Este sistema permite a los desarrolladores que realizan proyectos considerados “emisores” (por ejemplo, construir viviendas en el sur o restaurar un edificio catalogado) obtener “créditos” en forma de metros cuadrados transferibles. Estos créditos pueden ser utilizados en otros terrenos, denominados “receptores”, para construir por encima de los límites de altura y superficie que establece la zonificación estándar para esa parcela.
La base conceptual y los lineamientos generales del instrumento fueron incorporados en el título 10 del Código Urbanístico en el año 2024. El decreto 129/2025 reglamenta esta herramienta urbanística. Desde la perspectiva del desarrollador, una parcela emisora representa una oportunidad de negocio: la posibilidad de crear un activo financiero (el certificado de CCA) a partir de una inversión inmobiliaria, cuyo valor no reside únicamente en la rentabilidad del proyecto en sí, sino también en el valor de mercado de los metros cuadrados transferibles que genera.
Existen cuatro categorías de proyectos que pueden actuar como emisores de CCA. Una de ellas es la construcción de viviendas colectivas en manzanas de parcela única en el Área de Desarrollo Prioritario Sur, dentro de la cual se encuentra el Parque de la Ciudad. Las manzanas que se ponen en venta son de parcela única donde el futuro terrateniente urbano podrá construir aproximadamente 120.000 m2 en una superficie de 15.000 metros (superficie restante luego de construir el centro logístico) ya que puede construir edificios de hasta 25 metros de altura. De esta forma, el terrateniente urbano obtendrá una nueva generosidad del gobierno porteño: la posibilidad de duplicar los metros que construya y venderlos para la construcción de torres sorpresas en el norte.
Mientras, se cierran escuelas y las políticas habitacionales están en sus mínimos históricos.
--------------------------------
Para suscribirte con $ 8.000/mes al Cohete hace click aquí
Para suscribirte con $ 10.000/mes al Cohete hace click aquí
Para suscribirte con $ 15.000/mes al Cohete hace click aquí